- కట్టడాన్ని కూల్చివేసిన రెవెన్యూ సిబ్బంది
- పోలీసులను ఆశ్రయించిన నిర్మాణదారుడు-రెవెన్యూ అధికారులు
- చందానగర్ డివిజన్ జవహార్ కాలనీ రోడ్ నెం. 6లో ఘటన
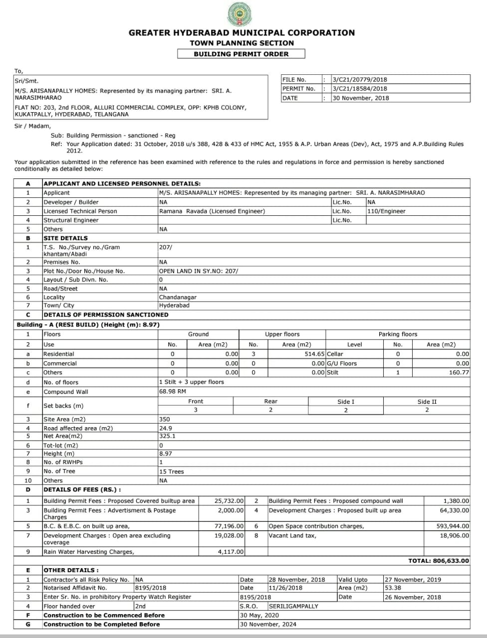
నమస్తే శేరిలింగంపల్లి: ప్రాథమిక దశలో ఉన్న ఓ నిర్మాణాన్ని ప్రభుత్వ స్థలంలో చేపడుతున్నారంటూ శేరిలింగంపల్లి రెవెన్యూ సిబ్భంది కూల్చివేయగా… సదరు నిర్మాణానికి జీహెచ్ఎంసీ మూడేళ్ల క్రితమే అనుమతులు ఇచ్చారంటు బాదితుడు పోలీసులను ఆశ్రయించిన సంఘటన చందానగర్ పోలీస్స్టేషన్ పరిధిలో చోటు చేసుకుంది. చందానగర్ జవహార్ కాలనీ రోడ్ నెంబర్ 6లోని ఓ విధిలో 418 గజాల స్థలాన్ని సర్వేనెంబర్ 207 గా పేర్కొంటు ఏ.నర్సింహారావు అనే వ్యక్తి 2018 నవంబర్ 30న జీహెచ్ఎంసీ నుంచి అనుమతి(పర్మిట్ నెంబర్ 3/C21/18584/2018) పొందాడు. ఇటీవల సదరు స్థలంలో భవన నిర్మాణాన్ని ప్రారంభించాడు. కాగా సదరు స్థలం చందానగర్ గ్రామ సర్వే నెంబర్ 174లోని ప్రభత్వ భూమిగా పేర్కొంటు శనివారం సాయంత్రం రెవెన్యూ అధికారులు కూల్చివేశారు.

దీంతో బాదితుడు కనీసం నోటీసులు ఇవ్వకుండా తన నిర్మాణాన్ని కూల్చివేశారని, ఆర్ఐ, వీఆర్ఓలపై చర్యలు తీసుకోవాలని చందానగర్ పోలీసులకు ఫీర్యాదు చేశారు. ఇదే క్రమంలో శేరిలింగంపల్లి రెవెన్యూ అధికారులు ప్రభుత్వ భూమిలో అక్రమ నిర్మాణం చేపడుతున్నారంటూ నిర్మాణదారులపై పోలీసులకు ఫిర్యాదు చేశారు. ఈ సందర్భంగా ఇన్స్పెక్టర్ క్యాస్ట్రో మాట్లాడుతూ ఇరు పక్షాల ద్వారా ఫీర్యాదు స్వీకరించి ధర్యాప్తు చేపడుతున్నామని అన్నారు. సదరు స్థలంలో సర్వే నిర్వహించిన తర్వాత వాస్తవాలను పరిగణలోకి తీసుకుని ముందుకు సాగతామన్నారు. అనుమతులు జారీ చేసిన టౌన్ప్లానింగ్ ఏసీపీ ఆర్.శ్రీనివాస్ను వివరణ కోరగా భవన నిర్మాణం కోసం దరఖాస్తు చేసుకున్నప్పుడు జతపరిచిన పత్రాల ఆధారంగా అనుమతులు జారీ చేశామని, ఒకవేళ అది ప్రభుత్వ భూమి అని తేలితే అనుమతులను రద్దు చేసి నిబంధనల ప్రకారం చర్యలు తీసుకోవడం జరుగుతుందని అన్నారు.






